Артикул:
СК-2
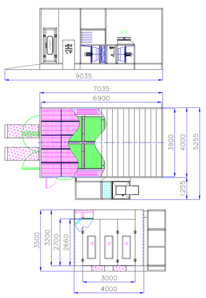
Покрасочная камера СК-2 поставляется с внутренними рабочими размерами: 7200x4000x2900 мм. Окрасочная камера СК-2 подходит для покраски легковых автомобилей, джипов. Поставляется в трех вариантах (с дизельной и газовой горелкой и электрическими ТЭНами) имеет полностью решетчатый пол. Пожаробезопасные стеновые и потолочные панели с наполнителем из минеральной ваты. Внутренняя поверхность стен с антибликовым покрытием.
Пульт управления входит в комплект поставки, программируемый, на основе микрокомпьютера "Philips", с возможностью подключения газоанализатора для контроля концентрации взрывоопасных смесей, с возможностью подключения автоматической системы пожаротушения. Привод заслонок POLAR BEAR. Горелка Lamborgini (Италия). Электропривод управления заслонками. Гарантийный срок составляет 18 месяцев.



*Цены указаны с горелками “LAMBORGHINI"
Для въезда и выезда машин предназначены двух- или трёхстворчатые ворота. Внутренний объём покрасочной камеры освещается специальными герметичными светильниками, расположенными вдоль стен под углом 45 градусов, которые обеспечивают равномерное освещение всего помещения камеры, возможна установка дополнительного нижнего ряда освещения.
Для создания оптимальных условий покраски в рабочем объёме окрасочная камера, создаётся равномерный поток чистого подогретого воздуха по направлению от потолка к полу. Очистка подаваемого воздуха осуществляется системой фильтров. Донный фильтр удаляет из выбрасываемого воздуха аэрозоль краски. Для равномерного и быстрого высыхания окрашиваемых поверхностей применена система обдуваемого нагрева внутреннего объема окрасочной камеры, с автоматическим поддержанием заданной температуры и независимой защитой от перегрева объекта сушки. Время выполнения операции сушки и испарения может быть задано оператором вручную, отдельно для каждого из режимов. На пульте управления покрасочной камеры можно выбрать следующие режимы "Окраска", "Испарение", "Сушка" и "Останов". При переключении из одного режима на другой пульт управления автоматически формирует команды на управление заслонками, включение и выключение двигателей, охлаждение теплообменника и т.п. Предусмотрена защита двигателей по току и теплообменника от перегрева.




Пульт управления входит в комплект поставки, программируемый, на основе микрокомпьютера "Philips", с возможностью подключения газоанализатора для контроля концентрации взрывоопасных смесей, с возможностью подключения автоматической системы пожаротушения. Привод заслонок POLAR BEAR. Горелка Lamborgini (Италия). Электропривод управления заслонками. Гарантийный срок составляет 18 месяцев.
Стандартные размеры СК-2
| Внешние размеры (ДхШхВ), мм | 7320х4120х3400 |
| Внутренние размеры (ДхШхВ), мм | 7200х4000х2900 |
| Размер ворот (трехстворчатые), мм | 2700х2700 |



Комплектация и цены СК-2
| СК-2 с электрообогревом, руб | 672000 руб. |
| СК-2 с дизельной горелкой, руб. | 681000 руб. |
| СК-2 с газовой горелкой, руб. | 709000 руб. |
Техническое описание СК-2
Покрасочные камеры состоят из окрасочного помещения, отделённого от окружающей среды теплоизолированными стенами, изготовленными из сэндвич панелей системы "Вентал, толщиной 10см, с базальтовым наполнителем.Технические особенности СК-2
Стены и потолок: Готовые сэндвич панели толщиной 10 см, с базальтовым наполнителем, изготовленные на английском оборудовании по системе "Вентал", соединены "в замок" жесткости.
Источники тепла: Для нагрева воздуха применяется 2-х моторная, отопительная вентиляционная установка "Farrier" включающая в себя приточный и вытяжной блоки, нагревательный блок, автоматический приводы и управление.
Система управления: Микропроцессорная с жесткой логикой, позволяет точно поддерживать температуру воздуха в покрасочной камере в режиме покраски и сушки. После окончания покраски автоматически включается режим продувки. Принудительно включает режимы охлаждения в конце каждого цикла работы. Система управления также обеспечивает защиту от перегрева и переохлаждения. Для переключения режимной заслонки используется электрический привод "PolarBear".
Освещение: 1600 люкс и более, 10 светильников, состоящих из 4-х люминесцентных ламп, каждый со специальным спектром, расположенных вдоль продольных стен под углом 45 градусов. Возможно дополнительное боковое освещение.
Въездные ворота: двух- или трехстворчатые (герметичные по периметру) двери с обширными стеклопакетами. Одна из створок используется для входа и выхода обслуживающего камеру персонала, а также выполняет функции аварийного выхода.
Конструкция пола: Изготовлено в виде металлических решеток, обработанных методом горячего цинкования, лежащих на специальной раме, имеющей несущую способность более 3,5 тонн.
Камеры имеют два способа установки:
1. На бетонное основание- способ требует проведения бетонных работ по формированию приямка согласно нашим чертежам и окраски этого приямка стойкой краской. В этом случае пол камеры находится на одном уровне с полом окружающего помещения.
2. На сборные металлическое основание - основание состоит из стальных профилей соединенных между собой таким образом, что образуют единое целое. Этот элемент имеет туже длину и ширину, что и сама покрасочно-сушильная камера. Недостаток-разница в высоте между полом камеры и полом основного помещения на 500 мм, требуется установка мостика-сходен
Дополнительно, опции монтаж СК-2
| Дополнительный светильник верхнего ряда на 40 В | 7300 руб. |
| Дополнительный светильник верхнего ряда на 30В | 7100 руб. |
| Дополнительный светильник нижнего ряда | 7100 руб. |
| Монтаж 1-го светильника | 1000 руб. |
| Металлическое основание | 34000 руб. |
| Монтаж СК-2 | 58000 руб |
| Шеф-монтаж СК-3 | 39000 руб. |
Технические характеристики СК-2

Покрасочная камера СК-2 (на приямок) с нижним забором воздуха

Технические характеристики СК-2 электрообогрев
Внешние размеры (д*ш*в): 7320*4120*3400
Внутренние размеры (д*ш*в): 7200*4000*2900
Размер ворот (трехстворчатые): 2700*2700
Вид нагрева: Электрообогрев
Тепловая мощность: до 200 кВт
Покрасочная камера СК-2 (на приямок) с нижним забором воздуха

Технические характеристики СК-2 дизельная
Внешние размеры (д*ш*в): 7320*4120*3400
Внутренние размеры (д*ш*в): 7200*4000*2900
Размер ворот (трехстворчатые): 2700*2700
Вид нагрева: Дизельная горелка
Тепловая мощность: настраиваемая - от 130 до 249 кВт
Покрасочная камера СК-2 (на приямок) с нижним забором воздуха

Технические характеристики СК-2 газовая
Внешние размеры (д*ш*в): 7320*4120*3400
Внутренние размеры (д*ш*в): 7200*4000*2900
Размер ворот (трехстворчатые): 2700*2700
Вид нагрева: Газовая горелка
Тепловая мощность: от 129 до 245 кВт
Отзывы
Оставить отзыв
Загрузка отзывов...
Вы можете воспользоваться одним из следующих вариантов оплаты:
- Оплата наличными. Мы принимаем наличные деньги (только рубли) через кассовый фискальный аппарат.
- Безналичный расчет для юридических и частных лиц.
- Оплата банковской картой. Оплата происходит через ПАО СБЕРБАНК с использованием Банковских карт следующих платежных систем: VISA, VISA Electron, Maestro, MasterCard, МИР
Товар можно получить одним из следующих способов:
- Самовывоз товара с пункта выдачи по адресу в вашем городе.
- Курьерская доставка с 9-00 до 23-00 по рабочим дням. Покупатель обязуется разгрузить оборудование собственными силами и в кратчайшие сроки. Простой автомобиля оплачивается отдельно.
- Доставка одной из следующих транспортных компаний: "ПЭК" (Первая Экспедиционная Компания), "ЖДЭ" (ЖелДорЭкспедиция), "ЭНЕРГИЯ", "ДЕЛОВЫЕ ЛИНИИ", "СДЭК" и другие.

